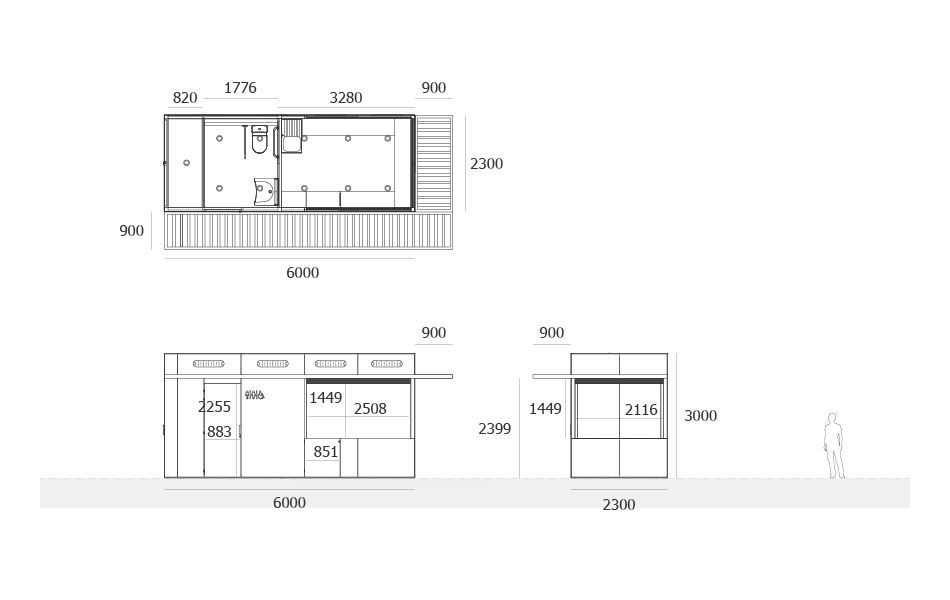
Quiosque Painel com Pérgola

Quiosque Painel com Pérgola

  • Ferro (S235JR)
  • Metalização SA2 1.5
  • Pintura 2 componentes à cor Forja Y764
  • Rev. compacto fenolico exterior
  • Rev. int./sup. painel sandwich
  • Porta e janela com aro em alumínio

Nota: Instalação elétrica e Todos os trabalhos de construção civil são opcionais.

Pedir Orçamento

A1 - SEM FIXAÇÃO

Método empregue em peças de um peso considerável. Consiste no posicionamento da peça no local exacto, sendo necessários meios de movimentação para a sua colucação.

não adie, faça acontecer

Peça um orçamento

    Microcubo
    Visão geral de privacidade

    Este site usa cookies para que possamos oferecer a melhor experiência de utilizador possível. As informações dos cookies são armazenadas no seu navegador e executam funções como reconhecê-lo quando retorna à Microcubo e ajuda a nossa equipa a entender quais seções do site considera mais interessantes e úteis.